Dibattito corretto e costruttivo tra maggioranza e opposizione nell’argomentare le rispettive posizioni sui punti all'ordine del giorno dell'ultimo consiglio comunale di Camerino. Nelle comunicazioni di apertura, il sindaco ha parlato di allerta meteo superata senza problemi, priva di situazioni di particolare difficoltà da gestire, grazie anche al Piano neve che ha potuto contare su 14 lotti più uno e 16 mezzi spartineve in azione con la dotazione, ove se ne fosse riscontrata l’esigenza, di 2 turbine pronte per l’emergenza. In conseguenza della percorribilità delle strade è stata decisa l’apertura delle scuole. “ Anche parlando con i dirigenti - ha detto il sindaco- mi sono reso conto che fermare le lezioni, sarebbe stato un disservizio ancora più significativo.”
Pasqui ha anche evidenziato il risultato ottenuto con l’ordinanza 510 della Protezione Civile Nazionale che ha autorizzato interventi per 4 milioni 900 mila euro dei quali 3 milioni 300 mila saranno destinati ad interventi di regimazione delle acque del bacino del “Fosso Lo Scarico”, per ridurre il carico idraulico conseguente alla realizzazione delle SAE e i restanti 1 milione e 600 mila per le opere necessarie a garantire la continuità del trasporto pubblico con la costruzione di un nuovo terminal per le aree in cui sorgono le casette e per realizzare l’attraversamento pedonale di San Paolo. Altro punto di soddisfazione per l’amministrazione l’accoglimento della possibilità di pagare le parcelle ai 10 tecnici incaricati delle messe in sicurezza (la prima richiesta risaliva al 26 agosto 2017 e i successivi solleciti al 24 novembre e al 4 gennaio 2018).

Con la contrarietà dell’opposizione, approvato a maggioranza, il piano triennale delle Opere pubbliche che prevede al 1° anno lo stralcio relativo alle strade; 300 mila euro da utilizzare nell’anno corrente e lavori di riparazione post sisma del mattatoio, (prima opera finanziata come ricostruzione). Tutti gli altri interventi fanno parte invece del secondo piano. Il quadro di massima sulle strade, illustrato dal vice sindaco e assessore ai lavori pubblici Lucarelli, prevede il completamento delle viabilità di San Paolo, Montagnano e parte di Vallicelle per l’impegno già previsto di 250 mila euro; 300 mila euro serviranno per il completamento della viabilità a Vallicelle e successivamente e nella parte restante per le frazioni, a seconda delle priorità. Quanto alle tempistiche di riapertura di via Seneca, Lucarelli ha dichiarato che, una volta conclusi i lavori dell’acquedotto a servizio delle Sae, tempo permettendo, da qui ad una decina di giorni la viabilità potrebbe essere riaperta.
Voto contrario da parte dei consiglieri di minoranza del gruppo “ Comunità e territorio”, sull’ approvazione del Dup e del Bilancio di previsione 2018-2020.
“ Il Dup – ha osservato il capogruppo Trojani- è il documento principe della programmazione e dovrebbe andare a descrivere le azioni che l’amministrazione vuole adottare e quindi la pianificazione strategica e operativa; a nostro avviso manca invece totalmente di una visione strategica. Il sindaco durante il consiglio ha fatto specifico riferimento alle perimetrazioni cosa che non è minimamente accennata nel Dup, così come non si fa alcun riferimento allo studio strategico fatto dal gruppo Cucinella che sembrerebbe essere stato abbandonato. Il nostro voto pertanto non poteva essere che contrario perché lo spirito di pianificazione è totalmente assente. Riguardo al bilancio è innegabile che sia in forte sofferenza e abbiamo notato un ricorso all’anticipazione di Tesoreria e ad un nuovo indebitamento per 300 mila euro, quando si potevano fare delle scelte molto più sostenibili; ho fatto presente ad esempio che per il 2018 c’è la sospensione dei mutui di Cassa Depositi e Prestiti per cui , invece di ricorrere ad un debito che a nostro avviso non è sostenibile, per realizzare lavori sulle strade, si sarebbero potute utilizzare queste economie. La scarsa capacità di programmazione- ha aggiunto - è anche testimoniata dal fatto che la Legge di Bilancio 2018 stanzia a favore dei comuni delle risorse che prevedono a fondo perduto fino ad un massimo di 5 milioni e 200 mila euro a comune di finanziamenti per opere di messa in sicurezza di immobili comunali o altri consolidamenti del territorio. Chiaramente per essere suscettibili di essere finanziate le opere debbono essere prima valutate; i tempi di finanziamento sono peraltro molto stretti perché è previsto che gli stanziamenti siano erogati entro marzo dopodiché si deve procedere con le gare. Il bando è scaduto il 20 febbraio; chiaramente non finisce qui perché ci sono ulteriori bandi anche per gli anni a venire, ma si sarebbe potuta sfruttare un’opportunità”.
Voto contrario sul Bilancio di previsione e sul Dup anche, da parte del consigliere indipendente di minoranza Pietro Tapanelli: “ Negli atti di programmazione, a mio avviso, l’amministrazione si sta muovendo come se nulla fosse accaduto e senza prendere coscienza del fatto che, da qui ai prossimi 15-20 anni, dovremmo individuare uno sviluppo sostenibile- ha spiegato- . E’ vero che le ‘casette’ sono in ritardo e che vi sono mille difficoltà sulle quali anche personalmente ho polemizzato più volte, è pur vero però che una volta risolte queste fasi emergenziali, bisognerà individuare uno sviluppo sostenibile, cosa che a mio avviso l’amministrazione non sta facendo o lo sta facendo in maniera errata. E cioè tentando di aggregare i piccoli comuni dell’ex Unione Montana che, a livello elettorale sono di marginale influenza. Credo che vada adottata invece, una strategia di più ampio respiro con i comuni sempre vicini a Camerino ma numericamente più grandi e in modo tale che ci si possa sedere sui tavoli della politica per avanzare delle richieste su lavori che contano, per avere maggiore forza e importanza. Dico questo perché se l’università di camerino gode ancora dell’esonero delle tasse e c’è stato addirittura un incremento nelle iscrizioni, spero di sbagliarmi, ma rientrando in vigore tra un paio di anni la tassazione ordinaria, si corre il rischio che accada quello che è accaduto a L’Aquila, dove la reintroduzione delle tasse universitarie ha portato ad un crollo di circa il 75 per cento delle immatricolazioni. Camerino non può permettersi di vivere senza università, questo deve essere chiaro, e, l’indirizzo deve essere con i comuni più grandi, creando un polo che conti in termini elettorali e in termini di voto”.
Soddisfatto del dibattito instauratosi per tutto il tempo della riunione, il sindaco Gianluca Pasqui : “ Abbiamo scambiato idee anche in prospettiva futura; è stato evidenziato che un atto come quello del bilancio è comunque sofferente da anni: ciò deriva dall’essere Camerino città che a fronte di un numero non elevato di abitanti ha tanti servizi, tanti chilometri di strade, tante frazioni e, di sicuro, non è facile da amministrare da un punto di vista economico. Rimane però la grande prospettiva presente e futura di una città che, seppur duramente colpita dall’evento sismico, si sta comunque rialzando ed è pronta ad uscire a breve dalla fase emergenziale, dopodiché si potrà guardare alla ricostruzione. Dal mio punto di vista- ha sottolineato il sindaco- l’aspetto più interessante del consiglio comunale, è stato il correttissimo dibattito tra parti politiche e consiglieri di maggioranza e di opposizione. Quanto alle opere pubbliche, con 300 mila euro andremo a chiudere i lavori a Vallicelle, quartiere con il quale si definisce un percorso che, insieme ad altri 250 mila euro previsti e già impegnati lo scorso anno e che adesso spenderemo, da un punto di vista di viabilità e di strade, permetterà di mettere a posto tutti i quartieri. Chiaramente dovremo guardare anche alla parte delle frazioni, cosa che stiamo programmando per arrivare a risultati importanti, da qui ad un anno. Ci sono circa due milioni di euro che abbiamo anticipato e che debbono rientrare al nostro ente dalla Regione dallo Stato, posso capire che il momento è particolare per tutti ma spero quanto prima che questi soldi rientrino e che possano andare ad alleggerire un bilancio del quale non possiamo nascondere la sofferenza, ma del resto ricordo che è stato sempre così. Questo è un momento di ulteriore difficoltà e – ha sottolineato- in verità siamo andati anche a farci carico di spese importanti relative al City Park, spese che non abbiamo certezza che possano rientrare ma che una volta che verranno riconosciute, saranno una ulteriore entrata in bilancio. Su questo- ha precisato Pasqui- ho comunque la certezza di essermi comportato correttamente con la diligenza del buon amministratore e la scelta ha salvato tanti cittadini da un punto di vista economico. Tra le cose che sogno per la città e anche per il sindaco di Camerino di oggi o di domani è che l’università nei grandi rapporti istituzionali consenta prima o poi al primo cittadino di portare un saluto nell’occasione dell’inaugurazione dell’anno accademico; io credo che, da queste apparenti piccole cose, si possa avere la dimostrazione che l’unione c’è e che, grazie a questa sinergia, possa esserci futuro per una città che non è solo università ma dove l’ateneo ha un’importanza fondamentale. E’ stata anche sottolineata l’importanza di unire sempre di più i territori e i comuni; da parte mia mi sono trovato un po’ in disaccordo con quanto prospettato dal consigliere Tapanelli perché i comuni più piccoli sono quelli che in verità sento più vicini perché parte della nostra territorialità; mi riferisco ai comuni di Serravalle, Ussita, Visso, Pieve Torina, a tutti quei comuni che fanno parte dell’ex Unione montana e della nostra zona. Non possiamo abbandonarli e da lì bisogna stringere importanti accordi con comuni come Castelraimondo, Matelica, San Severino proprio perché da questi rapporti futuri ci può essere la prospettiva. Ma prima di fare questo- ha concluso il sindaco- è indispensabile chiudere un momento di grande sofferenza che è legato all’emergenza; un’emergenza che è figlia certamente di quello che la natura ha voluto e comunque anche di una gestione che avrebbe dovuto e potuto essere portata avanti in maniera migliore. Per tanti motivi sono state fatte delle scelte che hanno comportato ricadute su una tempistica che si allunga quotidianamente e, talvolta, anche in maniera inspiegabile, Ma è pur vero che questa fase essenziale deve essere terminata, dopodiché possiamo guardare in proiezione futura”.
C.C.
Giornata importante quella dell'8 marzo per la comunità di Camerino e per tutto il territorio. Riapre dalla nuova sede di località Caselle n.1 l'ufficio del Giudice di Pace.
Soddisfazione è stata espressa dal sindaco Pasqui per un servizio che la città correva seri rischi di perdere.
"Se non parliamo di carcere perchè quello è un aspetto che non abbiamo potuto sanare con l'emergenza ma ci auguriamo di poter sanare con la ricostruzione- ha dichiarato il primo cittadino-, con l'inaugurazione dell'Ufficio del Giudice di Pace possiamo dire che tutto quello che c'era a Camerino il 23 agosto 2016, oggi continua ad esserci. Ringrazio il presidente del Tribunale Coccioli e il Procuratore della Repubblica Giorgio che hanno dimopstrsato sempre grande sensibilità verso le nostre istanze e si sono molto adoperati per restituire alla città questa importante istituzione, un traguardo che era tutt'altro che scontato. Sarà un momento di grande sobrietà, di enorme soddisfazione e di certezza per il futuro". La cerimonia è in programma per le ore 12.00
Un sovrappasso a Madonna delle Carceri- San Paolo. A Camerino, per salvaguardare l’incolumità dei pedoni nell’area al di sotto della rotatoria di Madonna delle carceri attualmente congestionata dal traffico veicolare, verrà realizzato un attraversamento pedonale soprelevato. Il sovrappasso fungerà da collegamento tra l’area Campus di Unicam e la zona delle attività commerciali e Polo scolastico. Sempre più spesso, soprattutto nelle ore serali, automobilisti transitanti in zona e studenti universitari che procedono a piedi, sono reciprocamente esposti al rischio di incidenti.
Al riguardo non c’è ancora l’ufficialità ma, secondo quanto riferito dal sindaco Gianluca Pasqui, un primo punto di incontro verbale favorevole alla realizzazione del sovrappasso, sarebbe già avvenuto con il capo della Protezione Civile Nazionale Borrelli e, a giorni, si dovrebbe giungere a verbalizzare per iscritto l’autorizzazione e la copertura finanziaria dell’operazione
“ Per rispondere alle esigenze della realtà ‘ nuova’ di quell’area, trovatasi a vivere una situazione profondamente diversa dalla preesistente- spiega il sindaco- si sta pensando anche a dei terminal bus, oltre che a delle nuove reti fognarie. Alla fine - continua il sindaco- mi sembra che stiamo concretizzando e portando a termine una fase che è ancora emergenziale e che per dirsi chiusa meriterà sicuramente del tempo ma che si sta cercando di concludere in maniera ottimale e cioè, riacquistando tutta la popolazione, avendo la certezza dei nostri figli all’interno di strutture scolastiche perfettamente rispondenti alle norme sismiche, vedendo i commercianti posizionati in strutture moderne e dignitose e la nostra comunità all’interno delle casette. Se partisse anche la ricostruzione dei danni lievi di tipo B- aggiunge Pasqui- io potrei anche pensare a riacquistare, da qui a qualche mese, quasi tutta la popolazione di Camerino”
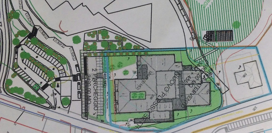
Riguardo all’area del Polo scolastico di via Madonna delle Carceri, sulla cui sede stradale sono in corso lavori per l'ampliamento della viabilità, l’amministrazione è in attesa del progetto della nuovissima struttura dell’Istituto Betti che occuperà lo spazio, ormai vuoto,a ridosso del Centro Comunità di san Paolo. L’interventorelativo alla scuola, copre una supoerficie di circa 9000 mq, 8447 dei quali occupati dal nuovo plesso cui si aggiungono un’area verde e 2490mq di parcheggio.

“ Speriamo a giorni di vedere il progetto definito e definitivo; a quel punto - conclude- dovrebbero partire i lavori. Per esserne sicuro e quindi dare certezze ai cittadini, c’è necessità di date precise a monte, mancando le quali purtroppo i verbi sono sempre al condizionale. Capisco le difficoltà di chi sta lavorando sopra di noi e torno a ripetere che la strada è da percorrere tutti insieme. Ogni giorno siamo impegnati a cercare di venir fuori da una situazione problematica e sicuramente, ci riusciremo”.
C.C.
A Camerino, certificato con la firma l'atto che formalizzerà la donazione del "Villaggio Lions" di prossima realizzazione a San Paolo, nell'area di ampliamento de Le Cortine. La sigla della convenzione è avvenuta tra il sindaco Gianluca Pasqui, il Governatore Lions Distretto 108/A Carla Cifati e il past Governator e presidente della fondazione Lions per la solidarietà distrettuale Marcello Dassori. Nella sala riunioni del Contram erano presenti anche il vice governatore Lions ing. Maurizio Berlati e per l'amministrazione comunale il segretario generale Montaruli e l'ing. Orioli.

Grazie ad una raccolta fondi mondiale con l'apporto dei Lions nazionali e internazionali e il fondamentale contributo del Distretto Lions 108/A la città ducale, tra i centri più colpiti dal sisma, vedrà realizzarsi un gesto concreto dal grande valore. Nell'area individuata sorgeranno 8 casette e un centro polivalente. " Crediamo molto nella comunità che aggrega- ha sottolineato Carla Cifati- e accanto alle strutture abitative abbiamo tenuto a realizzare anche un centro polivalente che potrà contenere fino a 100 persone e potrà servire a ricostituire socialità. Il punto di aggregazione che riteniamo fondamentale, circonderà dunque le 8 unità abitative; strutture da 50 mq ognuna composte da 2 camere, bagno ed un living composto di cucina e salottino. Puntiamo soprattutto a richiamare gente giovane che possa ripiantare radici in città, in modo da ricostituire quel tessuto sociale che si sta un po' disgregando. Speriamo con il nostro intervento che, rispetto alle necessità di questo luogo è piccolissimo, di riuscire a ricreare quello che Camerino era".
L'opera che si contestualizza in un'area di circa 3600 mq, in prossimità del centro abitato preeseistente e in quello che, nel percorso emergenziale, è divenuto di fatto il cuore nuovo della città, rappresenta un intervento di utilità stabile per la comunità, potendo essere utilizzato anche in futuro come bene prezioso ai fini del rilancio turistico culturale. Il centro polivalente è anche dotato di un'ampia cucina.

" Il nostro grazie- ha detto il sindaco Pasqui- va al governatore Cifola e al presidente della fondazione Dassori, al vicegovernatore Berlati del Distretto 108/A e a tutti i Lions che vivono una quotidianeità dettata da grandi gesti d'amore. E' un segnale per noi estremamente significativo e di grande aiuto nel percorrere con maggiore facilità una strada che è di certo in salita. L'aiuto delle istituzioni e delle associazioni che stanno guardando alla nostra terra e ai nostri cittadini con altrettanto spirito amorevole rende il tutto un po' meno difficile".
" La convenzione sarà di detreminati anni rinnovabili - ha spiegato Marcello Dassori,presidente della fondazione di solidarietà del Distretto 108/A - perchè la nostra azione solidale e sociale continuerà nel tempo;la presenza della nostra associazione, giunta a 101 anni dalla sua fondazione, sarà assidua. In tutto il mondo siamo circa un milione e mezzo di Lions e il contributo per questa azione è stato davvero globale, arrivando a raccogliere 2 mioni e mezzo di euro da destinare alle zone terremotate del Centro Italia. Sicuramente vi sarà una continuità nelle attività collaterali di supporto che i Lions del Distretto e nazionali metteranno in campo per continuare ad essere d'aiuto alle popolazioni del territorio".
Carla Campetella

“ Camerino mi ha dato la mia vita professionale e non potevo che iniziare da qui per promuovere il mio libro”. Così Flavio Corradini, davanti ad una platea di oltre cento persone, ha aperto la serata camerte dedicata alla presentazione di “ Condividiamo il futuro”, volume che condensa in 135 pagine le esperienze che hanno fatto degli ultimi sei anni il periodo più significativo e 'impegnativo' ma anche il più bello della sua vita.

Con l’introduzione a cura di Francesca Chiappa e la partecipazione di Gaetano Maccari titolare dell'azienda " Pasta di Camerino", nel suo incontro con i cittadini , il docente di Informatiica ed ex rettore di Unicam, ha ripercorso il lungo tratto costellato di ruoli di grande responsabilità, che gli ha consentito di accumulare competenze e maturare come persona. Ha raccontato del suo arrivo a Camerino nel 2004, da dove, in pochi anni, ha avuto l’opportunità di diventare rettore. Città e territorio gli hanno restituito pian piano grande fiducia, cementatasi nel tempo in un reciproco forte feeling.

“ Gli ultimi sei anni – ha dichiarato Corradini- sono stati l’esperienza più stimolante e affascinante della mia vita; l’ultimo anno, in particolare, mi ha permesso di mettere in campo tante qualità e capacità che non sapevo di avere; se ci sono riuscito è perché ho potuto contare sulla collaborazione di una squadra coesa che è stata sempre al mio fianco”. Condivisione e futuro sono le parole che pervadono tutte le pagine del racconto di Flavio Corradini che, nel dirci come sei anni lo abbiano profondamente cambiato, ha scelto di legare insieme successi e insuccessi, difficoltà e capacità di reagire, mettendo sempre al primo posto i grandi valori della famiglia, della persona, dell’inclusione e della partecipazione: “ Certe cose le avevo lasciate dentro di me per tanti anni, come alcuni momenti difficili del mio percorso; in queste pagine ho voluto raccontarle, perché la mia vita mi ha permesso di vivere esperienze anche traumatiche, come lo è stato dover gestire con lucidità un dramma come il sisma del 2016; credo che affrontare le difficoltà, superare gli ostacoli che si incontrano possa essere d’aiuto per la vita intera. Occorre farsi i muscoli, per poter arrivare a guardare oltre l’orizzonte, e i muscoli si fanno anche attraverso le brutte esperienze. Flavio, non si tira indietro; è una delle costanti della mia vita; finché non arrivo in fondo, non mollo”.
Condivisione e futuro anche nelle parole di Gaetano Maccari, titolare di “ Pasta di Camerino”, azienda che dalle difficoltà, è riuscita a costruire un ponte con il territorio. Di quei giorni seguiti alle scosse del 2016, l’imprenditore ha ricordato i momenti di forte preoccupazione e paura dei suoi 50 dipendenti. “Nei due turni quotidiani di lavoro, mi sono messo vicino a loro. Fortunatamente la nostra struttura ha retto benissimo ma ho voluto essere presente per incoraggiarli e tranquillizzarli. Sapevo che mollare avrebbe significato perdere tutto; eravamo coscienti della criticità della situazione eppure ci siamo armati di coraggio, riuscendo a mettere in piedi un progetto che, in famiglia, avevamo in mente da tempo. Alla popolazione serviva lavoro e ampliando le nostre strutture siamo riusciti a raddoppiare e a creare 20 posti di lavoro in più”.
“ Se i sogni debbono esserci e aiutano a guardare molto lontano è pur vero che bisogna arrivarci forti e con un po’ di sostenibilità - ha rimarcato Corradini rivolgendosi ai giovani-; per affrontare i problemi, occorre approfondire e studiare. Studio è opportunità; opportunità, impegno e responsabilità, rappresentano le parole chiave per la vita”.
Piacevole e molto confidenziale l’atmosfera che si è creata dall’inizio alla conclusione della serata, molto apprezzata dal numeroso pubblico intervenuto. Tantissime le persone che hanno voluto complimentarsi e, acquistato il libro, farsi rilasciare una dedica dall’autore.
I proventi derivati dalla vendita del libro di Flavio Corradini “ Condividiamo il futuro”, edito da Halley informatica, saranno devoluti ad Artcom, Associazione commercianti di Camerino.
C.C.

Si terrà domenica 4 febbraio, alle 17:30 nell’aula magna del Polo Scolastico Provinciale, il terzo appuntamento della 48^ Stagione Concertistica della Gioventù Musicale di Camerino, con il Quartetto d’archi Rolston.
La rassegna, fin qui molto apprezzata per la straordinaria qualità degli interpreti, si è aperta il 21 gennaio scorso, davanti a una sala gremita, con il recital del pianista sudcoreano Yekwon Sunwoo; domenica scorsa è stata invece la volta di una stella del jazz mondiale, la clarinettista israeliana Anat Cohen, da tempo considerata la migliore nel suo strumento in America, in duo con il chitarrista brasiliano Marcello Gonçalves. Il concerto, organizzato grazie all’associazione Musicamdo, ha affascinato il folto pubblico presente, che ha potuto ascoltare le musiche del compositore brasiliano Moacir Santos, contenute in un CD, “Outra Coisa”, recentemente premiato con la nomination ai Grammy Awards.
Domenica 4 febbraio si ritornerà invece al repertorio classico con il Rolston Quartet, talentuosa formazione composta da Luri Lee (violino), Jeffrey Dyrda (violino), Hezekiah Leung (viola) e Jonathan Lo (violoncello). La formazione si è aggiudicata nel 2016 il Primo Premio al prestigioso Concorso Internazionale per quartetto d’archi di Banff, in Canada.
Durante il suo primo tour europeo, nel 2017, l’ensemble ha suonato con grande successo ad Amburgo, Francoforte, Norimberga, Brema, Berlino, Praga ed Esterhazy. Nel corso del 2018 il quartetto suonerà invece ad Amsterdam, Colonia ed al Schwetzinger Festspiele. Dall’autunno del 2017 il Rolston String Quartet è in residenza presso la Yale School of Music.
Il programma prevede due capolavori della letteratura romantica: il Quartetto op.18 n. 3 di Beethoven e il Quartetto op.41 n.3 di Schumann; nel mezzo l’esecuzione di un brano della giovane compositrice canadese Zosha Di Castri: “String Quartet n.1”.
Controlli nei cantieri dell’area Sae Le Cortine a Camerino. Al centro degli accertamenti da parte di Polizia, carabinieri, guardia di finanza, ispettorato del lavoro e DIA (Direzione Investigativa Antimafia) le condizioni lavorative, documenti degli operai, trasparenza delle ditte esecutrici.
I risultati dei controlli, coordinati dal vicequestore Andrea Innocenzi in collaborazione con il tenente colonnello Walter Fava, comandante del reparto operativo di Macerata, saranno pubblicati a breve, tuttavia, a quanto è dato sapere, non sarebbero emerse irregolarità.
Le aree Sae di Camerino, presenti il sindaco, tecnici comunali e responsabili della Protezione civile e della Regione Marche, erano state oggetto ieri di sopralluoghi.
Successivamente si è svolta una riunione nei locali del Contram “ Un confronto molto utile, servito a rendere ancora più chiaro quanto in sostanza già sapevo. C’è stata una franchezza assoluta sia da parte dei tecnici che della politica regionale e, con l’assessore regionale Angelo Sciapichetti,
si è deciso di organizzare una conferenza stampa, volta a chiarire una volta per tutte le motivazioni che hanno spinto alla scelta di determinate terre e le ragioni per cui le consegne delle casette avverranno in determinati tempi. Tutto ciò- sottolinea il sindaco- non è figlio di cattivo lavoro, inefficienza o perdita di tempo; quel che infatti è emerso dalla stessa riunione, è che le terre di Camerino presentano purtroppo grosse difficoltà e problematiche tali, non solo da rallentare il percorso, ma, ci dicevano i direttori dei lavori, anche da far sì che, ad ogni istante,si presentino situazioni nuove da sistemare.
Tutto questo, evidentemente, comporta un percorso temporale sicuramente diverso, rispetto a chi
magari ha una sola area da sistemare. Camerino ha tante aree e oltretutto su terreni deboli che presentano problematiche serie, talmente vero questo- spiega Pasqui- che abbiamo 118 Sae sostanzialmente pronte come costruzione e addirittura ammobiliate ma che, mancando la terza fase delle ulteriori opere( allacci e urbanizzazion i successive), non possono essere consegnate. Camerino è una realtà a se stante e anche nel corso della riunione hanno tutti convenuto su questo; la nostra è una realtà che ha 238.000 metri cubi di zona rossa e va anche trattata in maniera diversa,
da altre pur duramente colpite. Sulle Sae dunque da parte dell’amministrazione non ci sono assolutamente ritardi – ribadisce il sindaco- e debbo dire che è stato per me motivo di orgoglio sentir dire dai rappresentanti della Protezione civile nazionale che Camerino è uno di quei comuni che si è adoperato per far sì che non vi sia uno sperpero di denaro pubblico legato ad ordinativi sbagliati.
Questo è potuto accadere perché a monte c’è stato un lavoro che ha portato all’identificazione certa dei destinatari delle Sae e, un conto è riuscire nell’operazione dovendo fare circa 5.000 sopralluoghi, altro discorso è doverne fare 200, 700 o 1.000. In verità sono stanco di dover fare continui paragoni, perché ogni comunità e ogni sindaco ha le sue problematiche, tuttavia ormai abbiamo pressoché raggiunto l’obiettivo di una data certa per la consegna delle Sae. Faremo quanto prima una conferenza stampa con Regione e Protezione civile e sarei contento fosse presente anche il Consorzio Arcale per toccare in maniera più organica le questioni e, nel frattempo, comunque andremo avanti con gli incontri già stabiliti con i cittadini assegnatari delle Sae. Se ne sono già tenuti diversi e debbo dire che ho trovato nei cittadini una grande comprensione e collaborazione; questo è il dato più bello e significativo, da stimolo e incoraggiamento per andare avanti.
Carla Campetella
Lavori fermi da circa dieci giorni nell’area Sae di Vallicelle a Camerino. Mai partiti invece quelli dell’area di Sant’Erasmo, nonostante il cronoprogramma preveda la consegna delle casette entro il 28 febbraio.
La stessa amministrazione comunale, dice di ignorarne i motivi che si stanno cercando di chiarire con l’ente regionale. “ Quello che sta accadendo è molto grave- dichiara il sindaco Pasqui- ; stiamo già iniziando a pensare alla nomina di un legale che possa seguire tutto l’iter fino alla consegna delle ‘casette’ per ogni cantiere. I cronoprogrammi per i quali sto chiedendo aggiornamenti in riferimento a tutte le aree- prosegue Pasqui- non mi vengono comunicati in tempo reale il che, da parte della Regione Marche è ingiustificabile. Il prossimo 24 gennaio mi incontrerò con il presidente Ceriscioli, proprio allo scopo di ottenere delucidazioni; i ritardi sono sensibili ed evidenti, ragion per cui bisognerà cercare di capire e anche far sì che il tutto subisca un’accelerazione. A dir la verità – continua- personalmente è da tempo che cerco di evidenziare che non sono mie tutte le colpe che sovente mi si addossano, a partire dalla scelta delle aree che hanno dei motivi ben precisi, fino alla tempistica adottata dal comune. Oggi però che i ritardi sono assurdi ed ingiustificati è sotto gli occhi di tutti e, anche per questo motivo, abbiamo deciso di iniziare ad incontrare e informare gli assegnatari delle casette, facendo il punto della situazione almeno ogni dieci –quindici giorni e di conseguenza comunicandolo loro.
Detto questo- sottolinea Pasqui- , non potendo abbassare comunque la guardia anche di fronte a situazioni spiacevoli, siamo pronti a continuare a guardare avanti fiduciosi. Di certo, quando accadono fatti inspiegabili come il fermo lavori a Vallicelle o come l’area di Sant’Erasmo dove i lavori non sono mai partiti, qualche pensiero non buono ci corre in mente. Tengo a precisare che questo tipo di difficoltà non riguarda solo Camerino; le stesse problematiche le sta infatti vivendo Valfornace e, dai dati ufficiali che riguardano altri comuni, la consegna delle Sae sta subendo ritardi in molti casi e, addirittura anche nei comuni facenti parte del primo cratere sismico .
Una problematica dunque preoccupante e da sanarsi, ma – conclude Pasqui- sono convinto che nelle prossime ore il presidente della Regione saprà prendere in mano la situazione”.
C.C.
Pienone a Camerino per la Notte nazionale del Liceo Classico. Sei ore di apertura straordinaria del Polo scolastico provinciale, per l’appuntamento che in tutta Italia ha coinvolto più di 400 scuole. “ La Legge” il filo conduttore scelto per legare insieme i quadri animati della quarta edizione. Commenti entusiasti dal folto pubblico che ha gradito e apprezzato impegno e professionalità degli studenti, cimentatisi nella lunga serie di performance a coniugazione del motto “ Dura lex sed lex”. Ad animare l’iniziativa, nata per promuovere la Cultura Classica in tutte le sue forme, anche inusuali, una carrellata di brevi drammatizzazioni, arricchite da danza, simulazioni di processo, spiegazioni scientifiche e coreografie, sorseggiando tea e assaporando cibi ispirati alla tradizione greca e latina.

Un risultato di sorprendente vivacità per l’eccezionale maratona che ha rappresentato un’ulteriore circostanza per testimoniare il valore e l’attualità degli studi classici, come percorso affascinante e straordinaria opportunità di formazione per i giovani. Dall’evento, grazie alla disponibilità del personale e dei docenti, anche un’ occasione del tutto particolare per far conoscere l’Orientamento in ingresso a chi si prepara alla scelta del percorso scolastico degli istituti superiori.
Dalle 18 a sera inoltrata, la sede dei Licei di Camerino ha aperto le porte alle decine e decine di visitatori, accolti in un’atmosfera festosa che ha animato ogni aula e ogni corridoio dell’istituto.

Condotti per mano dagli studenti in costume, con il prezioso sostegno dei docenti e del personale, gli ospiti hanno potuto immergersi nella ricca sequenza di eventi in programma: Estratto dall’Antigone di Sofocle; Danza “Infernale”; La Legge di Azzeccagarbugli; Estratto dalla Persa di Plauto; Processo in materia di testamento biologico; Esperimenti di chimica e dimostrazioni di Matematica; Quadro parlante La Giustizia; La giustizia di Dante.

Applausi e unanime consenso per La notte del Liceo Classico, patrimonio culturale da difendere quale istituzione che consente ai giovani, di leggere la complessità dell’oggi e potersi misurare con il futuro da protagonisti.
Carla Campetella



Il bracccio meccanico della gru dell'impresa esecutrice dei lavori, aggancia con la pinza grondaie, ringhiere. Polvere e prime macerie che rotolano gù dal palazzo di via Seneca davanti agli occhi curiosi e al rumore dei pensieri di numerosi abitanti del quartiere Le Conce. Anche il primo cittadino Gianluca Pasqui è arrivato in zona per seguire le prime opere di demolizione del palazzo di via Seneca n.36. E i segnali di passi in avanti per l'amministrazione si mescolano alla forte partecipazione emotiva e agli occhi lucidi dei presenti.

" Arrivando qui e considerato il lungo iter che ha portato ai lavori di demolizione- commenta il sindaco Pasqui- pensavo che comunque le sensazioni sarebbero state positive; in verità guardare i lavori in corso è qualcosa che non può emozionare e commuovere. E' un pezzo di storia della nostra città, un pezzo di vissuto delle famiglie e della vita di tutti i cittadini che se ne va e, da uomo, i sentimenti che provo sono forti. Sono cresciuto qui e tutto questo mi tocca personalmente. Da sindaco tuttavia- prosegue Pasqui-, esprimo soddisfazione perchè, si è giunti al risultato, dopo un lungo percorso e dopo una serie di vicende che meriterebbero approfondimenti. E la luce che si apre è quella della ricostruzione. Alla demolizione seguirà la riapertura di una strada, il rilancio della città, un altro percorso che sfocierà nella costruzione da nuovo, di un edificio pienamente rispondente alle normative antisismiche. Al dilà della sofferenza che noi tutti proviamo davanti a questa scena- sottolinea il sindaco- il segnale è che la città non si ferma; sono sicuro e convinto di aver fatto assolutamente il massimo con gli strumenti a mia disposizione. Bisognerebbe forse intervenire sugli strumenti affinchè nella nostra splendida penisola, le cose possano procedere ancora in maniera più veloce. Ad oggi- conclude - ritengo realmente di aver contribuito a portare a casa un risultato straordinario per una struttura che inizialmente, per una serie di circostanze circoscritte corredate da documenti, avrebbero condotto a percorsi diversi che invece siamo riusciti a portare a termne diversamente con una demolizione".
Per la riapertura al transito di viale Seneca, bisognerà attendere circa un mese; intanto operai e mezzi continueranno a lavorare all'abbattimento del palazzo. Per consentire l'esecuzione dei lavori in sicurezza e facilitare il transito dei veicoli inpiegati nele opere e nella rimozione macerie, il mercato settimanale del sabato è stato trasferito a Vallicelle nello spazio adibito alle attività commerciali dell'area "Vallicenter" dove, dal 13 gennaio, troveranno posto le bancarelle


